案例信息
| 设计师 | 张强 |
| 工装类型 | 民宿小镇 |
| 工装面积 | 2501平米以上 |















案例说明
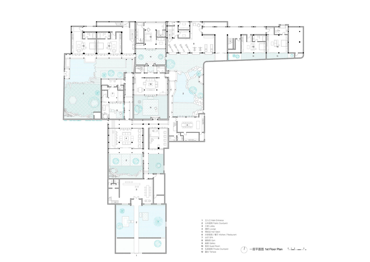
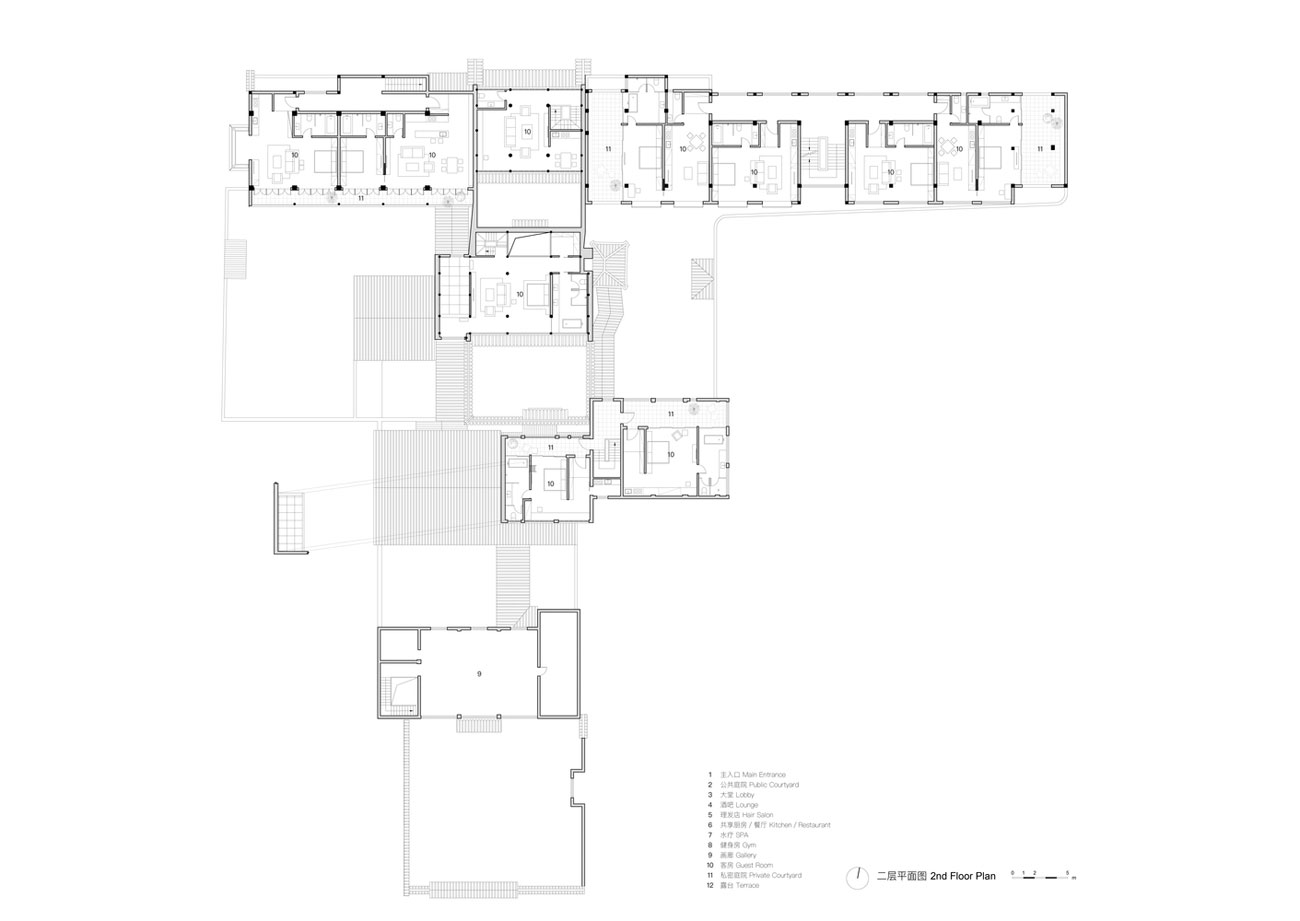
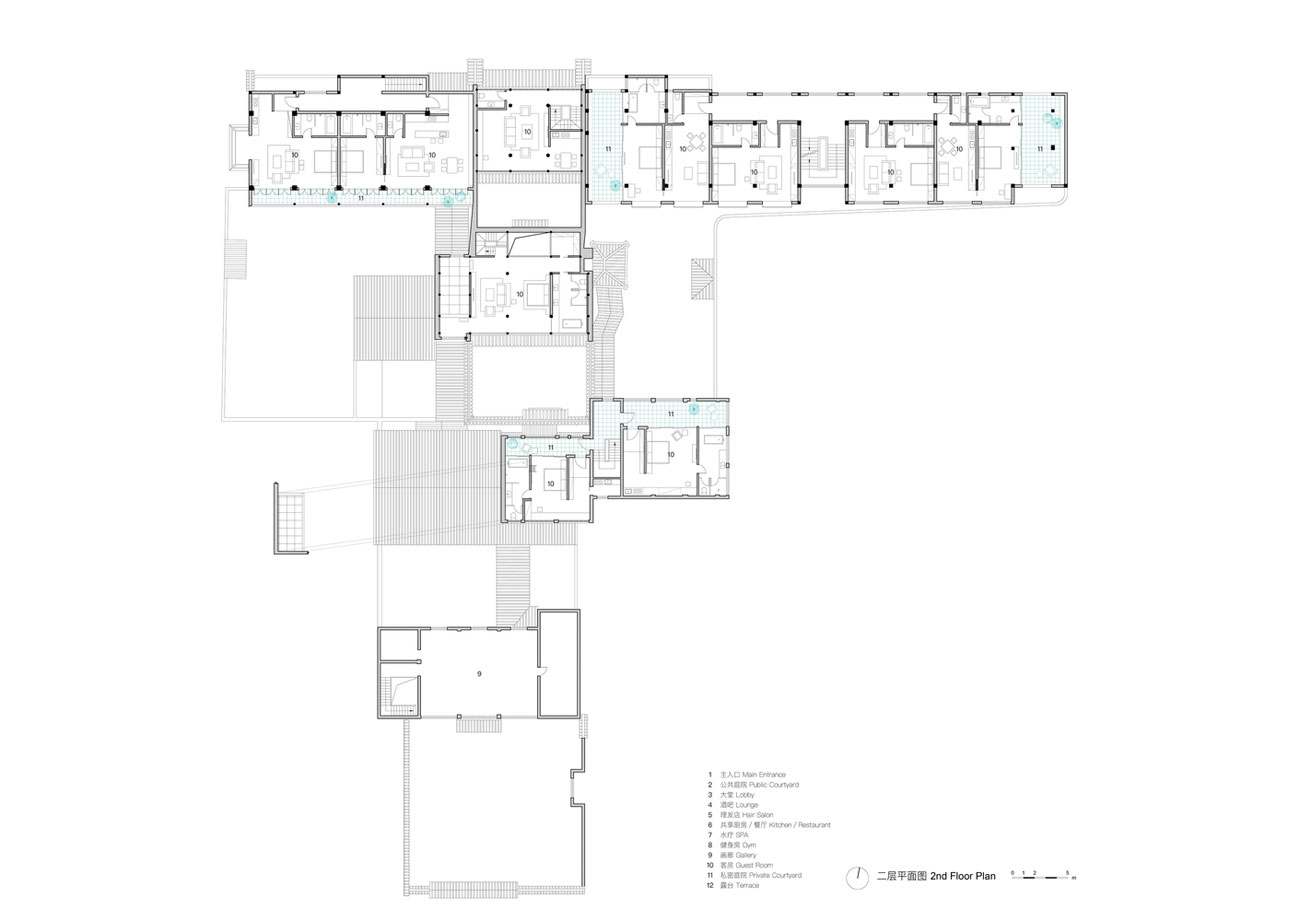
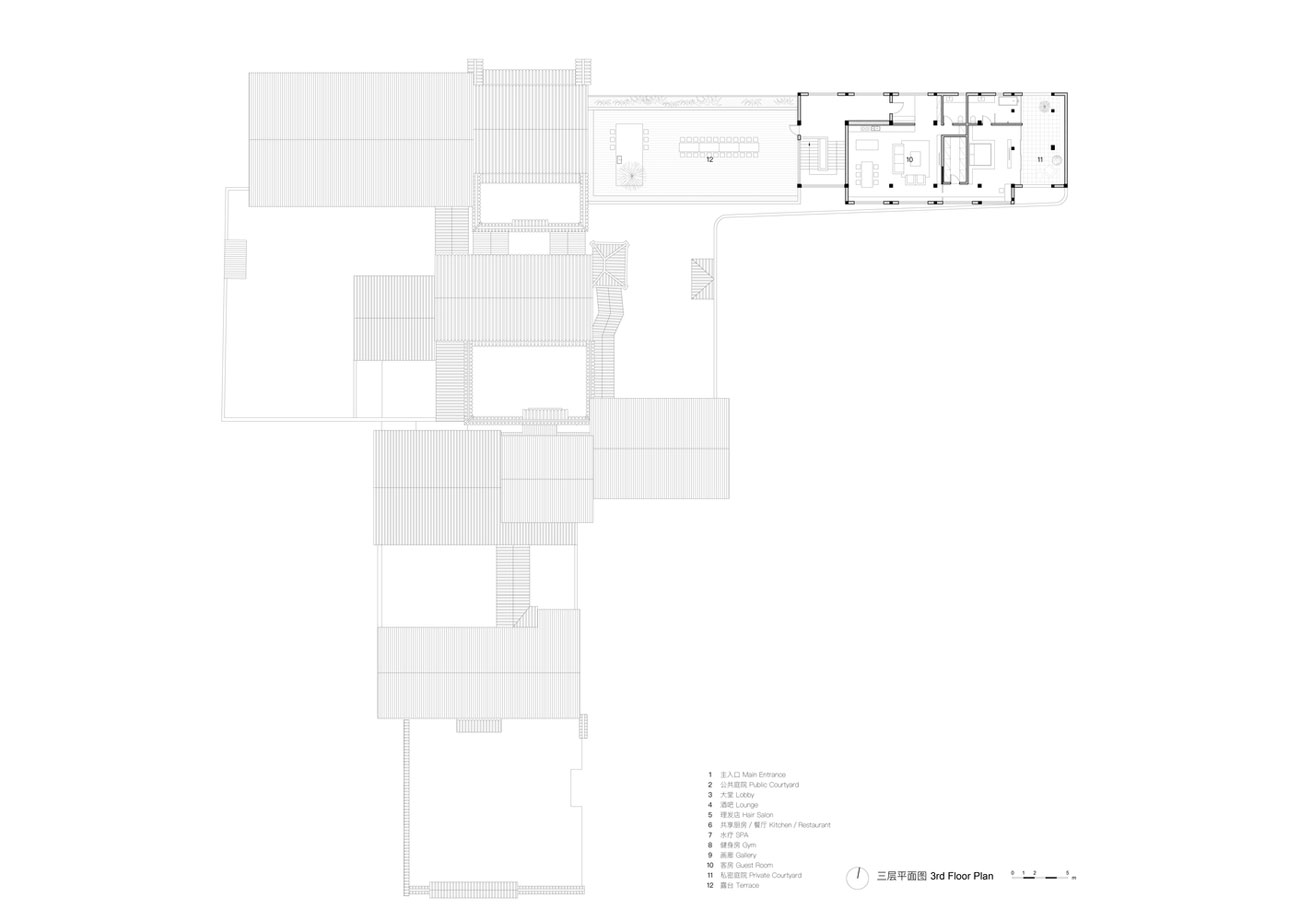
中式园林民宿设计
拨打公司电话(18109056676),5分钟即可获得您的装修预算。
要装修找成都有木装饰设计【官网】原创家装美学设计*硬装软装设计_商业空间装修设计公司,更多优惠等着你!我能为你提供以下服务
1初步预算2预约设计 3装修收售前咨询4免费量房服务预约5最新优惠活动介绍及预约
24小时服务电话:18109056676
从业年
DESIGNER
DESIGNER
| 擅长风格 | |
| 代表作品 | 首城汇景湾,路劲·世界城,首城汇景湾,首城汇景湾,沿海赛洛城小区,首城汇景湾, |











